Llámanos:

Escríbenos:

CONTÁCTANOS

2do semestre 2027

DEPARTAMENTOS EN INDEPENDENCIA

EDIFICIO VIVACETA

Bono pie hasta 10%

DESDE 2.934 UF

1 Y 2 DORMS

Cercano a Metro Hospitales

Piscina

Quinchos

Kids Zone

Lavandería

Hall

INTERIORES QUE SORPRENDEN

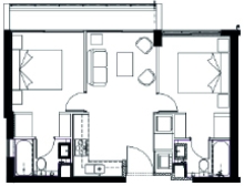
Plantas

1D-1B

2D-1B

2D-2B

Superficie Útil

35.94 m²

Superficie Útil

46.59 m²

Superficie Útil

47.94 m²

Galería

Start adding elements into your carousel.

Start adding elements into your carousel.

Start adding elements into your carousel.

Start adding elements into your carousel.

Start adding elements into your carousel.

Contacto:

Nuestros Aliados:

Nuestros socios:

Síguenos